Однозонная сервогидравлическая универсальная испытательная машина с клиновыми захватами
Сервогидравлическая универсальная испытательная система серии HUT-D имеет конструкцию с верхним расположением актуатора, позволяя двустороннему дифференциальному цилиндру проводить испытания как на растяжение, так и на сжатие в одном пространстве. Силовая рама с нулевым люфтом и актуатор с регулируемым вертикальным положением позволяют гибко настраивать испытательное пространство даже для испытаний со сложными условиями. Серия HUT-D, предназначенная в первую очередь для испытаний на растяжение металлических материалов, поддерживает замкнутое управление усилием, перемещением и растяжением с возможностью плавного переключения между режимами. Результаты испытаний автоматически рассчитываются программным обеспечением УИМ и могут быть распечатаны или отформатированы в различные форматы.
Арматура, соединительные муфты для арматуры, литые изделия, крепеж, цепи и т.д.
- ISO 7500-1, ISO 9513, ISO6892, ISO 15630, ISO 15835, BS 4449, ASTM E8, ASTM E 83, ASTM E4, ASTM A370, ASTM A416
Энергоэффективный и эргономичный дизайн
По сравнению с предыдущим поколением, новая серия HUT-D имеет значительное улучшение характеристик:
- уровень шума снижен на 15%
- энергопотребления во время испытаний снижено на 74%
- занимаемая площадь уменьшена на 8%-29% в зависимости от размера модели
Жесткая силовая рама
Жесткость рамы испытательной машины увеличена на 120%-188% по сравнению с предыдущим поколением. Это повышает точность измерений и снижает вибрации во время испытаний.
Высокая скорость, эффективность и простота эксплуатации
Модернизированный гидравлический силовой агрегат и оптимизированная конструкция трубопроводов повышают скорость работы без нагрузки и общую эффективность тестирования. Дополнительный встроенный ПК с сенсорным экраном предлагает пользователям интуитивно понятное управление универсальной испытательной машиной и быструю настройку параметров тестирования.
Интеллектуальная система визуального контроля
Интеллектуальный четырехцветный индикатор состояния (соответствующий стандарту IEC 60073) обеспечивает четкую визуальную обратную связь о состоянии машины. Эта интуитивно понятная система сигнализации помогает операторам избежать неправильных действий и повышает общую безопасность и эффективность работы.
Интеллектуальный ручной пульт управления
Обновленный пульт Handset V3.0 оснащен 3.5-дюймовым сенсорным экраном, отображающим в реальном времени значения нагрузки, положения траверсы, состояния машины и состояния захватов. Интерфейс сенсорного экрана позволяет пользователям напрямую включать сервосистему.
Маховик позволяет активировать сервосистему и поддерживает быстрое переключение языка. Специализированные функциональные клавиши дают возможность управлять открытием/закрытием захватов и позволяют УИМ быстро возвращаться в заданное исходное положение.
- Точная регулировка поворотного колеса
- Управление открытием/закрытием захвата
- Функция защиты образца
- Запуск/остановка теста
- Управление перемещением траверсы вверх/вниз
- Возврат в исходное положение
- Запоминание исходного положения
| Модель | | | | | |
| Макс. нагрузка, кН | 300 | 600 | 1000 | 2000 | |
| Класс точности измерений | 0.5 | ||||
| Точность измерения нагрузки | ±0.5% от показания вплоть до 1% от емкости датчика | ||||
| Разрешение по нагрузке | 1/600 000 от шкалы | ||||
| Скорость нагружения усилием, % от шкалы/с | 0.02%-2% | ||||
| Точность позиционирования | ±0.5% или 0.13 мм (большее значение) | ||||
| Разрешение по положению, мм | 0.004 | ||||
| Точность измерения растяжения | ±0.5% от показания вплоть до 2% от полной шкалы (экстензометры класса B-1, B-2 по ASTM E83 или класса 0.5 по ISO 9513) | ||||
| Разрешение по растяжению | 1/600 000 от шкалы | ||||
| Жесткость, кН/мм | 520 | 700 | 950 | 1820 | |
| Скорость подъема поршня (актуатора), мм/мин | 630 | 340 | 625 | 305 | |
| Скорость опускания поршня (актуатора), мм/мин | 450 | 710 | 1400 | 650 | |
| Расстояние между колоннами, мм | 520×390 | 550×370 | 650×400 | 650×400 | |
| Расстояние между захватами для растяжения (H), мм | 500 | 500 | 600 | 780 | |
| Макс. пространство для сжатия, мм | 320 | 300 | 395 | 500 | |
| Диаметр круглых образцов, мм | ⌀5-⌀12 ⌀12-⌀22 | ⌀5-⌀12 ⌀12-⌀22 ⌀22-⌀32 | ⌀5-⌀12 ⌀12-⌀22 ⌀22-Ф32 ⌀32-⌀40 | ⌀5-⌀12 ⌀12-⌀22 ⌀22-⌀32 ⌀32-⌀50 | |
| Толщина плоских образцов, мм | 2-13, 13-25 | 2-16, 16-30 | 2-25, 25-50 | 10-40, 40-70 | |
| Плиты сжатия, мм | ⌀150 | ⌀150 | 200×200 | ⌀240 | |
| Ход поршня (актуатора), мм | 500 | 500 | 600 | 600 | |
| Потребляемая мощность, кВт | 4.5 | 4.5 | 12.5 | ||
| Электропитание | 380В ±10%, 50Гц, трехфазное | ||||
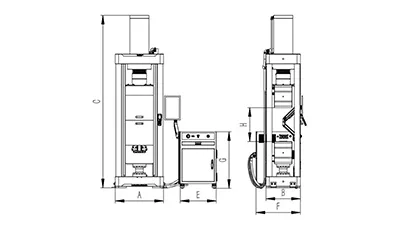
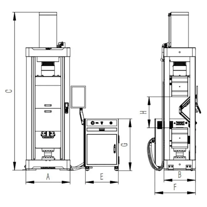
| Габариты рамы (A×B×C), мм | 600×470×2470 | 730×550×2700 | 870×620×3110 | 1100×800×4055 | |
| Вес машины, кг | 1100 | 2000 | 4200 | 8500 | |
| Габариты гидростанции (E×F×G), мм | 650×800×1010 | ||||
| Вес гидростанции, кг | 260 | ||||
| Гидравлическое масло | #46 гидравлическое масло, 108 л | ||||
Мы также предоставляем широкий спектр аксессуаров для всех типов оборудования для механических испытаний.




